工程投标 · 全国招商教学家具品牌厂家

全国服务热线151-0804-1137
轮播图最新

中央行政事业单位通用办公家具规格和性能指南

来源: | 发布日期:2023-08-24

中央行政事业单位通用办公家具规格和性能指南

1 范围

本文件规定了通用办公家具的术语与定义、基本要求、外观、材料、环保、质量、规格和售后服务要求。

本文件适用于中央行政事业单位司局级及以下干部的通用办公家具管理工作,是中央行政事业单位编制和执行通用办公家具配置计划,实施政府采购,开展资产日常使用、调剂、处置等工作的指导依据。中央行政事业单位可依据本文件,结合实际制定本部门、本单位通用办公家具规格和性能管理具体方案。

对未列入本文件资产品目内的其他通用办公家具,应当按照与单位履行职能需要相适应的原则执行掌握。

2 规范性引用文件

下列文件中的内容通过文中的规范性引用而构成本文件必不可少的条款。其中,注日期的引用文件,仅该日期对应的版本适用于本文件;不注日期的引用文件,其最新版本(包括所有的修改单)适用于本文件。

行政事业性国有资产管理条例 (国务院令第738号)

中央行政事业单位国有资产管理暂行办法 (国管资〔2009〕167号)

中央行政单位通用办公设备家具配置标准 (财资〔2016〕27号)

木家具通用技术条件(GB/T 3324—2017)

木家具质量检验及质量评定(QB/T 1951.1—2010)

金属家具通用技术条件(GB/T 3325—2017)

金属家具质量检验及质量评定(QB/T 1951.2—2013)

3 术语与定义

中央行政事业单位

国务院各部门、各直属事业单位,最高人民法院,最高人民检察院,有关人民团体等的机关本级及其所属垂直管理机构、派出机构等各级行政单位和各类事业单位。

通用办公家具

普遍适用于中央行政事业单位,配置在包括办公室、会议室等场所,满足办公基本需要的家具,不含专业类家具。

4 基本要求

4.1 通用办公家具选材、制作、运输、使用及报废等应当符合国家有关资源节约、绿色健康环保等标准和要求,逐步形成相对统一的风格,促进标准化生产和规模化采购。

4.2 通用办公家具应当符合勤俭节约、庄重严肃、简约实用的要求,不得配置豪华家具。各单位在用的办公家具,应当继续使用,加强维护保养,不得借机进行非必要配置和更新。

4.3 中央行政事业单位应当综合考虑通用办公家具存量、增减变动和机构人员情况等因素,科学编制配置计划,严格按计划配置通用办公家具。

4.4 通用办公家具应当根据办公实际需要和办公用房面积、布局合理配置。新组建部门办公区、集中办公区或开展综合性维修的办公区等,具备条件的,可结合实际配置统一风格的通用办公家具。

4.5 配置通用办公家具首先应当通过单位内部调剂存量资产予以保障;内部无法调剂的,可通过中央行政事业单位公物仓进行跨部门、跨地区、跨层级的调剂予以保障。确有必要购置的,应当严格按照资产管理有关规定执行。

4.6 中央行政事业单位应当建立通用办公家具使用责任清单制度,明确使用人和管理人的岗位责任,将管理责任落实到具体人员。使用人、管理人应当履行岗位责任,按照规程合理使用、管理通用办公家具,及时提出维修、保养、调剂、更新、报废需求,保证资产安全完整,充分发挥资产效能。

4.7 严格执行中央行政事业单位通用办公家具处置管理有关规定,规范处置程序,经维修后仍具有使用价值的通用办公家具,应当及时修旧利旧,已达报废期限但尚能使用的要继续使用,切实做到物尽其用,避免浪费。除国家另有规定外,经批准的处置事项要面向社会进行公开,增加处置事项透明度。

5 外观和材料要求

5.1 样式要求

通用办公家具样式宜与建筑装修风格协调一致,不做多余装饰,体现务实节俭的办公文化。零部件构成合理,拆装方便,结构功能尺寸设计符合人体工效学原理。

5.2 颜色要求

通用办公家具颜色宜与建筑内装饰风格相适应,以单色为主,不宜过分鲜艳,内外部涂饰应当协调一致。木制家具表面颜色推荐选用胡桃木色、樱桃木色、原木色;钢制家具表面颜色推荐选用灰白色或者镀铬金属色;覆面材料推荐选用黑色、棕色、米色。

5.3 材料要求

制作通用办公家具宜选用可回收、可循环利用材料,材料性能符合国家及行业标准,不得选用名贵木材。

6 环保要求

6.1 板材有害物质限量要求:甲醛释放量≤0.05mg/m³,总挥发性有机化合物(TVOC)释放量≤0.1mg/m³。

6.2 座椅软包、织物中有害物质限量要求:皮革、纺织品面料禁用可分解芳香胺染料。

6.3 涂饰材料中重金属限量要求:可溶性铅≤90mg/kg,可溶性镉≤75mg/kg,可溶性铬≤60mg/kg,可溶性汞≤60mg/kg。

7 质量要求

7.1 外观质量

家具表面平整光滑,无明显划伤、凹坑、鼓泡、黑色斑点、污渍等缺陷;木制家具表面木纹纹路一致,凹凸部分匀称,纹理清晰,色泽一致;无褪色、掉色现象,贴面严密平整,封边、包边无脱胶、鼓泡或开裂现象。

家具长、宽、高等核心尺寸长度、宽度误差≤3mm;桌平面、立面板材翘曲度值≤1mm。

7.2 力学耐用性

零部件应无断裂或豁裂;无严重影响使用功能的磨损或变形;用手揿压某些应为牢固的部件,应无永久性松动;连接部位应无松动;活动部件(门、抽屉等)开关应灵活;家具五金件应无明显变形、损坏;推柜稳定性牢固,柜门、抽屉用力开合不变形。办公桌、办公椅、会议桌、会议椅最大承重不低于100kg;书柜、文件柜内隔板最大承重不低于35kg;衣柜内隔板最大承重不低于30kg,挂衣杆最大承重不低于15kg;抽屉最大承重不低于6kg。

7.3 表面耐用性

表面漆膜遇生活中常见酸性或碱性液体不会出现褪色、变形、膨胀、纤维突起、开裂、鼓泡等现象,日常使用不会产生明显划痕和漆膜剥落现象;遇光照、冷、热、温差不易鼓泡、裂缝和明显失光。

8 材质和规格要求

W020230821785455477994


9 售后服务要求

9.1 中央行政事业单位以购置方式配置通用办公家具时,宜选择能够提供不低于3年免费保修期的家具供应商。免费保修期内,享受免费家具维修及零部件更换等售后服务;超出免费保修期限的办公家具,可采用有偿方式方进行家具维修更换等。

9.2 中央行政事业单位以购置方式配置通用办公家具时,宜选择配备专业售后服务人员、在本单位所在区域设置常维修服务机构的家具供应商,及时提供售后服务。


附录:
  1.通用办公家具参考样式

  2.办公室通用办公家具摆放参考样式

W020230821785455688813

W020230821785455903582



W020230821785456054624

W020230821785456191568

W020230821785456337623

W020230821785456482017

条文说明

《中央行政事业单位通用办公家具规格和性能指南》(以下简称《指南》)正文共9项,包括范围、规范性引用文件、术语与定义、基本要求、外观和材料要求、环保要求、质量要求、材质和规格要求、售后服务要求;附录2个,分别为通用办公家具参考样式和办公室通用办公家具摆放参考样式。

一、范围。与中央行政事业单位国有资产管理职责范围保持一致,《指南》适用单位范围为国务院各部门、各直属事业单位,最高人民法院,最高人民检察院,有关人民团体等机关本级及其所属垂直管理机构、派出机构等各级行政单位和各类事业单位;资产范围为配置在包括办公室、会议室等场所,满足办公基本需要的通用办公家具,不包括医疗、教育、科研等工作所需的专业类家具。

二、规范性引用文件。与通用办公家具相关的制度和标准数量较多。统筹考虑《指南》的政策性和专业性,本条目列举了3项现行有效的法律法规和部门规章,以及4项在《指南》中引用次数较多、规定较为全面的国家及行业标准。各类家具规格和性能指标,原则上不得低于国家及行业标准。对于环保标准等另有特殊要求的,在条文中作明确规定性表述。对于国家及行业标准未有明确规定而现实工作中有通行惯例的,也尽可能遵从惯例,将合理有效的作为指标固化下来。

三、术语与定义。明确中央行政事业单位和通用办公家具的定义。

四、基本要求。立足机关事务管理部门资产管理工作实际,对通用办公家具的总体要求和生产、采购、配置、使用、处置等全生命周期管理作出了规定。

五、外观和材料要求。落实“中央国家机关首先是政治机关”的属性要求和坚持勤俭办一切事业的工作要求,《指南》明确通用办公家具样式宜与建筑装修风格协调一致,不做多余装饰,零部件应当构成合理、拆装方便;颜色应以单色为主,不宜过于鲜艳;选用可回收、可循环利用材料,不得选用纳入《濒危野生动植物种国际贸易公约》和《国家重点保护野生植物名录》及其他价格较高的木材。

六、环保要求。《指南》按照《绿色产品评价 人造板和木质地板》(GB/T 35601-2017)、《木家具通用技术条件》(GB/T 3324-2017)、《室内装饰装修材料 木家具中有害物质限量》(GB 18584-2001)中的有关要求,明确了板材、座椅软包、织物中有害物质限量要求和涂饰材料中重金属限量要求。

七、质量要求。为了推动通用办公家具在最低使用年限内正常使用,参照《木家具 质量检验及质量评定》(QB/T 1951.1-2010)、《金属家具 质量检验及质量评定》(QB/T 1951.2-2013)等相关标准和行业惯例,推荐了外观质量、力学耐用性和表面耐用性要求。

八、材质及规格。《指南》聚焦近年来采购量比较大、使用比较普遍的8种家具品目(办公桌、办公椅、书柜、文件柜、衣柜、沙发、会议桌、会议椅),结合工作人员级别对应的办公用房面积、通用办公家具配置标准以及《木家具 质量检验及质量评定》(QB/T 1951.1-2010)、《金属家具 质量检验及质量评定》(QB/T 1951.2-2013),推荐了材质和规格尺寸等方面的参考指标。

九、售后服务。《指南》根据目前行业内的通行做法,建议各单位采购通用办公家具时,选择的家具供应商能够提供以下售后服务,尽可能延长资产生命周期:一是免费保修期不低于3年,二是家具供应商在采购人单位所在区域设置常驻维修服务机构,安排专业的售后服务人员。

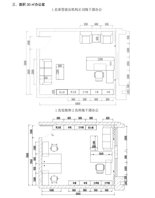
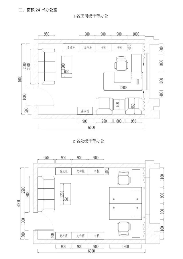
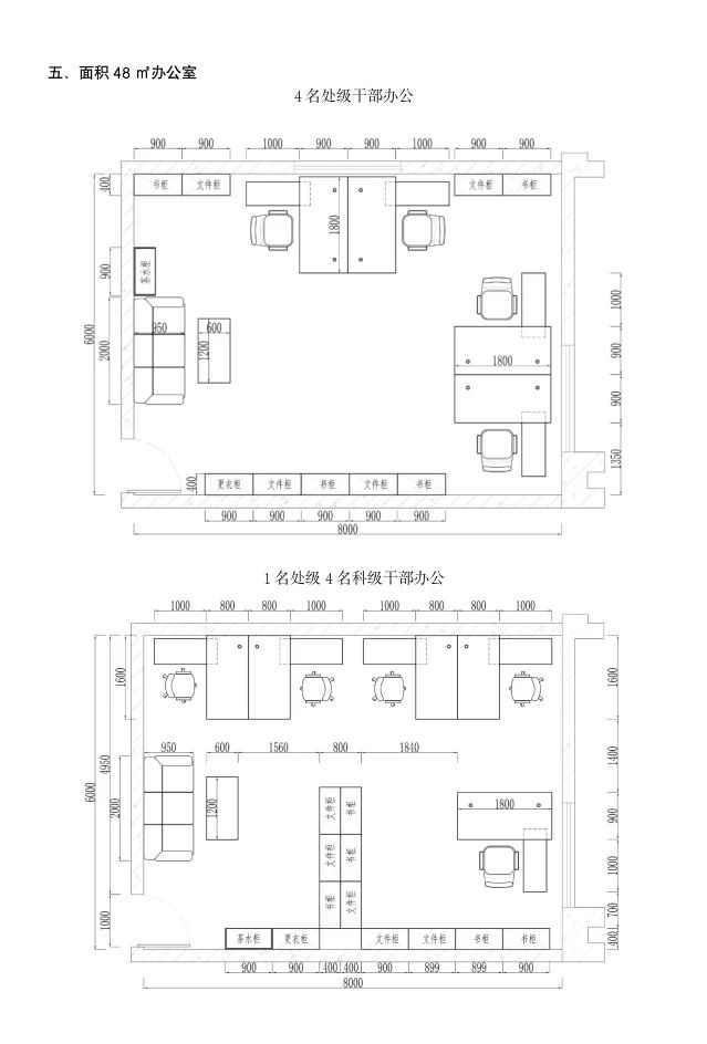
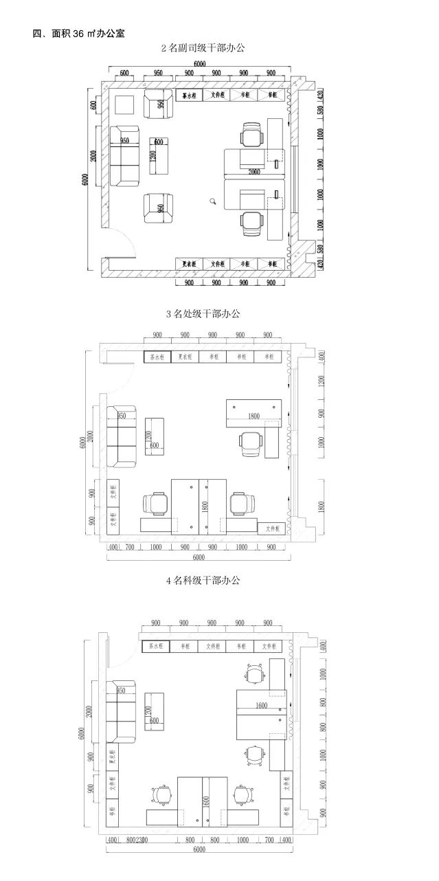
十、《指南》的附录体系。考虑到通用办公家具的品目、材质和使用场景均具有一定的发展变化性,作为推荐性、参考性标准,《指南》构建了一个开放式的附录体系,即结合当前市场实际和使用情况,先行提供2个附录,后续结合行业发展和使用情况变化及时拓展补充。本次附录主要是通用办公家具参考样式和办公室通用办公家具摆放参考样式。通用办公家具参考样式主要是根据推荐的样式、材质等指标参数,对相关品目家具实物的概念呈现。办公室通用办公家具摆放参考样式有效衔接重点选取司级、处级及处级以下干部在18㎡、24㎡、30㎡、36㎡、48㎡等5种面积的办公用房中办公的11种场景,更加直观地呈现办公家具在各种办公室面积空间的摆放布局。


来源:中国政府网


本文标签 办公家具-沙发-办公桌-班台

责任编辑--香港六宝典最新版开奖 编辑--小凯

版权所有/(香港六宝典最新版开奖学生公寓床厂家)转载请注明出处

最新资讯